storefront Schedule Appointment
person Make Appointment phone Call Us storefront Our Location

The Tropicana

The Tropicana
3 Bedroom Home
950 Sq Feet

  • Singlewide Home for Sale at Mi Casa Housing in Atascosa, Texas

Home Overview

"Experience the refreshed allure of the Tropicana in 2022! Discover the following exciting updates:

Features: Elegant Cove Moulding & Door casing throughout the entire home, adding a touch of sophistication. Enjoy the brilliance of Recessed LED lighting, providing enhanced illumination throughout. Opt for Tape and textured finishes available on site with blue nail orders, for a seamless and polished look. Convenience meets functionality with Medicine cabinets in every bathroom, offering practical storage solutions. Stay cool and energy-efficient with Radiant barriers, maximizing cooling efficiency. Benefit from built-on AC units, eliminating installation errors and saving you money.

To schedule an appointment and explore our available Tropicana model homes, please call (210) 622-0450 to speak with a sales representative. Alternatively, you can simply text APPT to (210) 834-9860, and we will promptly assist you in scheduling your visit."

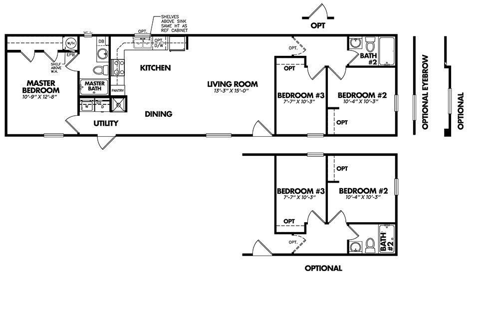
Floorplan

1664-32C floorplan - home for sale in San Antonio

Virtual Tour

home features

  • 200-AMP Total Electric
  • 30-Gallon Electric Water Heater
  • 9' 0" at Peak Vaulted Ceilings Throughout
  • Over 30' Interior Floor Width
  • 2x6 Floor Joist 16" O.C.
  • Tongue & Groove O.S.B. Floor Decking
  • 11-11-21 Insulation
  • Vinyl Thermal Pane Windows
  • 34" Steel In-Swing Front Door with Deadbolt
  • Rear Door with Deadbolt
  • Composition Shingle Roof - 3/12 Pitch
  • Tapeless Ceilings w/ Blown Texture
  • Vinyl Flooring Throughout
  • Raised Panel Interior Doors with Metal Knobs
  • Decorative Valances Throughout, Living Room, Master Bedroom, Drapes
  • Mini-Blinds Throughout
  • Decorative Residential Vinyl Wall Boards
  • Post-Form Roll-Top Countertops w/ Bullnose Front Edge and Integrated Backsplash
  • Raised Panel Vinyl-Wrapped Vacuum-Sealed Cabinet Doors
  • 3/4" Vinyl-Wrapped Cabinet Stiles
  • Center Shelves with Vinyl Front Edge Banding in Base Cabinets
  • Hidden Cabinet Door Hinges
  • Stainless-Steel Kitchen Sink
  • Kitchen Pantry
  • LED Light(s) in Kitchen
  • Towel Bars and Toilet Tissue Holders in Bathrooms
  • Satin Nickel Hardware
  • Plumbed and Wired for Washer and Dryer
  • Smoke Detectors

Frequently Asked Questions

  • Can we change colors and interior options inside The Tropicana home?
    expand_more

    If you are looking to customize your new home, you tell us your vision and we make it happen. Design and build your custom home from hundreds of different colors, optional upgrades, and construction features. We have model homes at our store with many color selections as well as lookbooks so that you can find the exact color that fits your family.  After the home order is placed, the factory schedules an assembly build date. After home is built, we can schedule delivery straight to your home plot. 

    Get started today -- Design your own custom factory-built home in San Antonio!

  • Does The Tropicana include everything I need?
    expand_more

    Our Mi Casa factory home packages have everything you need and will save you thousands compared to our big box-competitors. Our homes are a top value in San Antonio housing market, selling at 1/4 the price per square foot of comparable site-built homes. The Tropicana Buying a new home, delivery, setup, A/C - we will create an affordable home package to meet all of your needs.

    Get started on home package price quote.

  • Do I need a down payment or a bank to buy The Tropicana?
    expand_more

    Yes, to purchase The Tropicana from Mi Casa Housing, we require anywhere from 5-30% down payment, depending on your credit and the total home package price. We have easy financing options for homebuyers through many of the best national lenders. Ultimately, we shop the different lenders to get our customers the best deal.

    Learn more about financing your home. Less than you might think!

  • Does Mi Casa Housing deliver and setup The Tropicana across San Antonio?
    expand_more

    We are the area's trusted home transportation company, providing takedown, pickup and delivery service for over 25 years.  Having delivered and setup manufactured homes all across San Antonio and South Texas, we know almost every situation and are well prepared for the journey.

    We have the heavy-duty equipment for every home size and the local expertise needed to ensure your home is safely delivered from our sales lot and setup on your property.

  • I have been turned down at other home dealerships, will Mi Casa Housing be the same?
    expand_more

    No. Unlike the Warren Buffett big box stores with their OWN in-house finance company, Mi Casa Housing works with MANY different finance companies that all specialize in chattel lending & manufactured home loans to customers right here in San Antonio. Many of these finance companies offer first-time home buyer programs that help bad credit or no credit customers qualify for a new mobile home.

    Monthly payments start at just $699 a month*. Get pre-qualified today.

Biggest mobile home selection San Antonio Mi Casa Housing Home Retailer

share this home

Similar Models

If this home wasn't your thing, we have many more floorplans available.

travel_explore View All Homes